當前位置: 華文頭條 > 家居

極簡極致,隱匿於城市角落的現代家庭住宅

2025-03-13家居

Slow 工作室於名古屋打造現代家庭住宅

坐落於日本愛知縣名古屋市的山口町住宅,由 Slow 工作室匠心設計,是一座專為一家三口打造的現代居所。其外墻采用燒制雪松木材構建,環繞著建築立面。設計師的這一精心考量,使得房屋能夠巧妙地與周邊住宅環境融為一體,宛如身著一件 「黑色長袍」,憑借其材質與配色方案,在鄰居眼中顯得極為低調,近乎隱形。

山口町住宅盡顯優雅極簡設計風格

住宅內部巧妙融合了混凝土與木材兩種材質。空間布局劃分為公共空間、功能空間以及私人空間三個層次。透過挑高且無遮擋的天花板與玻璃表面,房屋巧妙地將這些區域相連,確保各個區域在視覺上始終保持通透連貫。對於山口町住宅,Slow 工作室的設計團隊成功呈現出一種既具優雅格調,又能與周邊環境完美融合的現代極簡主義設計風格。

▼住宅入口

▼建築平面

▼起居空間

▼通往住宅睡眠區的通道

▼從後部望向客廳及入口

▼臥室區域與通道相鄰的衛浴空間

▼閣樓空間

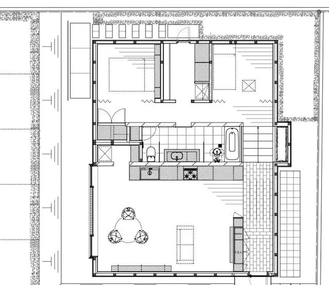
▼建築一層平面圖

▼閣樓平面圖

計畫資訊

名稱:山口町住宅

建築師:slow 工作室

建築面積:87平方米

地點:日本愛知縣名古屋市

攝影:托洛洛工作室(Tololo Studio)

文本:建築師 / 編譯:木屋世界

「木屋世界」與您一起領略世界木屋風采,感受環球美景佳作。

我們是木結構與裝配式整合建築及相關行業資訊服務平台。

相關合作請聯系我們,支持我們請不吝點贊。